What’s your favourite museum and what does it look like?
For me, it’s hard to choose between the V&A Museum in London, with its beautiful, endless art and design galleries and its stylish special exhibitions; and the Exploratorium in San Francisco, which does the best job of explaining science and technology I’ve ever seen; and of course, the Vasa Museum in Stockholm, home to an entire 64-gun warship.
But I have no memory of the Vasa Museum looks like from the outside. For all I know, it’s a huge featureless box, just like the Exploratorium. And while I do remember the V&A’s red brickwork, it blurs together with other Victorian buildings across the UK. I couldn’t care less what my favourite museums look like, because what I love about them sits inside their walls.
The new V&A Dundee museum is the polar opposite. With its angular slate-grey profile set against the River Tay, it’s unforgettable. Like the Guggenheim Museum in Bilbao, you’ll see it in every Dundee tourist guide for decades to come.
It just has one problem: there’s barely anything inside. It’s not a museum, it’s an £80 million public sculpture.
A Living Room for the City
I was genuinely excited to see the V&A Dundee when it opened in 2018. I grew up in Dundee, and I hoped the new museum might be just as good as its parent in London, if understandably smaller.
But even before I set foot inside, I could tell something was wrong:

How tall do you think that building is? 3, 4, maybe even 5 storeys of public space?
Nope. There are just two floors the public can enter:

That seems a bit small for a major new museum, but still, it’s a wide building. Maybe two floors is fine if they’re both filled with galleries and exhibition space?
Let’s take a look at what’s on the ground floor:

So, there’s a shop, a cafe, an info desk, and a lobby. But that’s just a plan, right? Surely they added something else?

No, it really is just a shop, a cafe, an info desk, and a lobby. Well, there’s a bit more of the shop out of view to the right, plus some toilets and lockers, but that’s it. Kind of a strange way to greet visitors to what’s meant to be, you know, a museum.
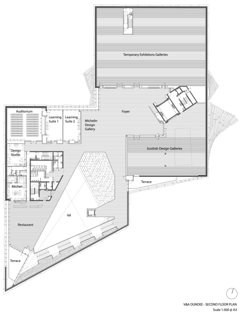
OK, but maybe they’re saved everything for the second floor? Let’s find out:

The Temporary Exhibition Galleries at the top and the Restaurant at the bottom both require visitors to pay, so the two areas the general public can access for free are the Scottish Design Galleries and the foyer, which includes the Michelin Design Gallery.
Here’s the Michelin Design Gallery:

These kinds of temporary open exhibition spaces are often quite small so it’s easy to change them up. You won’t spend a lot of time here.
And here is part of the Scottish Design Gallery, the only permanent gallery in the whole museum:

It’s pretty good! There are lots of fun examples of Scottish design, from video games like Lemmings to sculptures by Eduardo Paolozzi. There’s even an entire room from one of Charles Rennie Mackintosh’s tearooms. If you took your time, you could spend a good hour wandering through the gallery’s 550m² of space.
And then you might be done with your visit, because that’s literally everything you can see for free.
You could stump up £12 to see a temporary exhibition, but I didn’t because I’d already seen Ocean Liners: Speed and Style at the V&A London. If you did pay, however, you’d get access to Scotland’s largest museum-grade exhibition space, spanning 1100m². And you might really enjoy it! But the V&A Dundee is unusual among UK museums in having only a third of its gallery space free to enter. The Science Museum and the National Museum of Scotland and the British Museum all have big paid exhibition spaces, but they’re dwarfed in size by their free galleries and exhibitions.
Perhaps if the V&A Dundee’s paid exhibitions were particularly good or unique, that would justify their command of the building, but its first two originated from the V&A London (Videogames: Design/Play/Disrupt and Ocean Liners) and the third, Night Fever: Designing Club Culture, originated from the Vitra Design Museum. Its first fully-homegrown exhibition, Tartan, only comes in 2023 and is being curated by Jonathan Faiers, a professor of fashion at the University of… Southampton.
Try as I might, I cannot comprehend the decisions that went into building an £80 million museum with barely any space for free galleries, few original major exhibitions, and the entire first floor given over to a cafe and a shop. The V&A Dundee calls itself a “living room for the city“, but that only makes sense if there’s nothing to do in your living room, and you need to pay to turn on the TV.
But doesn’t everyone like the V&A Dundee? Most art critics gave it high marks. Will Gompertz at the BBC called the museum “world class”, going on at length about its architecture. Duncan Macmillan at The Scotsman gushed over the Scottish Design Galleries, saying “it is a delight for us, but it also fulfils the V&A’s duty to reach out beyond the English metropolis which is its home.” Rowan Moore at The Guardian had a rare dissent, complaining the museum’s “oddly distributed space is not actually congenial to the uses advertised.”
(I have never quite understood art critics’ obsession with architecture. One wonders how they would review Sir John Soane’s Museum or the Pitt Rivers Museum, neither of which look special from the outside – or even the inside – but have utterly fascinating collections, easily worthy of repeat visits.)
Visitors were much more faster to identify the museum’s flaws in their reviews. On Google Maps, the most common keyword is “waste”:

Some of those reviews include:
- Beautiful building but underwhelming exhibitions. So much waste of space at the entrance and stairway. Only free exhibitions on at the moment… – 3/5 stars, Elizabeth Moser
- Visited today, very disappointing, both in the architectural features and the total waste of spaces within the building… – 3/5 stars, Janice Learmonth
- Take some photos of the exterior and don’t waste your time inside, was in for about 25 minutes and had been round what was there… – 1/5 stars, Alan Urquhart
Tripadvisor is even less generous, with Dolly Dimples saying, “The building is nice but there’s hardly anything in it. Could be so much better,”, Matthew L saying, “The V&A building itself is a marvel … it is the content (or lack of) inside which left me so very disappointed,” and lbj17 adding, “There is much open space and we were unfortunately somewhat underwhelmed by the internal content.”
To be fair, there was some criticism of the V&A Dundee published in mainstream media by The Herald, but only long after the opening. Lorn Macneal, a conservation architect, was quoted saying, “Externally it is a striking piece of architecture,” but, “the inside … disappointed me. In many museums you enter, such as the Kelvingrove, you immediately see the exhibits, which create a sense of invitation to see and learn more. It has failed in my mind in its principle areas. It is a tourism hub, a cafeteria and a shop.”
Nicola Walls, director of arts and culture at Page Park architects, was more damning: “…When you walk in, the café and coffee shop on the ground floor is more affordable and the more expensive restaurant is upstairs. We talk a lot about these buildings being democratic, but is there a subconscious separation going on?”
So much for a living room for the city.
Finland’s 100th Birthday Present to Itself
At the end of 2018, just three months after the V&A Dundee, a vast new civic building opened in Finland: the Helsinki Central Library Oodi, commonly known as Oodi.

The Oodi is a £88 million box. A box with flowing facades made of lovely materials, but a box nonetheless. It’s a functional shape, allowing each of its three floors to maximise its useable space.
The top floor is the library proper, holding 100,000 books, magazines, board games and video games:

The second floor has a recording studio, synth studio, DJ and karaoke studio, photograph and video studio, digitizing studio, group kitchen, maker space, group rooms, game rooms, among other things. Most can be used for free:

And the ground floor has more space for books, plus a cinema, events hall, gallery, exhibition area, and cafe:

In total, Oodi has 17,250m² of space, the vast majority of which can be used for free.
Oodi opened on Finland’s 100th anniversary of independence, which is why it’s been described as its 100th birthday present to itself: a lavish, more extravagant version of something it’s always wanted, open to everyone. A bit like a fancy museum, you might say.
There are more parallels between Oodi and the V&A Dundee: they both cost £80-90 million and their countries both have a population of 5.5 million. But that’s where the similarities end. Oodi has had almost three times as many visitors as the V&A Dundee, and even though you’d think a library is much less of a tourist attraction than a museum, it boasts far higher ratings on Google Maps and Tripadvisor:
| V&A Dundee | Riverside Museum | Oodi | |
|---|---|---|---|
| Founded | 2018 | 2011 | 2018 |
| Size | 1100m² temporary + 550m² permanent galleries (8000m² total) | 7,000m² exhibition area | 17,250m² total (a third for books) |
| Cost | £80 million | £78 million | €98 million (~£88m) |
| Year 1 Visitors | 830,000 | 650,000 | 3,100,000 |
| City Population | 150,000 | 630,000 | 650,000 |
| Country Population | 5.5 million | 5.5 million | 5.5 million |
| Tripadvisor Rating | 3.0 | 4.5 | 4.5 |
| Google Maps Rating | 3.9 | 4.6 | 4.6 |
I’ve included Glasgow’s Riverside Museum of Transport in this comparison because it shows it’s possible to build a visually-striking museum with a reasonably-sized exhibition area for under £80 million. Not only was it designed by Zaha Hadid, but it has the same visitor ratings as Oodi!

Some Imaginary Questions and Answers
Q: Why does Helsinki need another big library? It already has plenty! So isn’t the Oodi even more of a waste of money than the V&A Dundee?
A: Not only does Oodi has more and different facilities than other Helsinki libraries, but each of those other libraries hit record numbers of visitors after Oodi opened in 2019. What’s more, Dundee already had a very good art gallery and museum, The McManus, which has <checks notes> a rating of 4.6 on Google Maps and and 4.5 on Tripadvisor.
Q: It’s not fair to compare a library’s visitor numbers with a museum’s! Most people will only go to a museum once, but they’ll go to a library lots of times.
A: And that’s a bad thing? Sounds like they’re getting a lot of value out of it.
Q: What’s wrong with making a civic building look nice?
A: There’s nothing wrong with interesting architecture, but not at the expense of its core purpose. The V&A Dundee’s is meant to be a museum – a place to see and learn from a curated selection of important objects. If the architecture of the building means that barely any of its space is available to display those objects, then it is bad architecture.
Q: Maybe the V&A Dundee’s true purpose is to attract tourists.
A: There are cheaper and better ways to do that than spend £80 million on a building that ranks 56th of out 118 “things to do” in Dundee.
Q: Who cares? It’s built now. We might as well appreciate it.
A: We should all care how £80 million of public money is spent. In Helsinki, it was enough to build a library that’s become the envy of the world. In Dundee, it was wasted on a bauble with such a miserly amount of useful public space it barely deserves to be called a museum.
Can It Be Saved?
In July 2020, Leonie Bell was announced as the new director of the V&A Dundee. Bell told The Courier, “I accept the criticism we have had about space,” and noted that during the pandemic, the museum converted its ground floor cafe into an exhibition. She added, “This is not about looking back and thinking that what happened wasn’t right. We are only two years old and have been closed for part of that time. We are still learning and we always will be learning. Buildings are always places of change.”

Some buildings can change enormously. MIT’s famous Building 20, the “plywood palace”, was ugly and cheap, but it had many different uses over its 55 year lifespan because its box-like structure made it easy to modify the interior. The V&A Dundee is no Building 20 – just look at its plans. Its striking architecture makes major changes incredibly difficult.
What about smaller changes? Well, even if some or all of its ground floor cafe and shop were to be permanently converted into an exhibition, it would be a small exhibition sitting in a space manifestly not designed for exhibitions. It’d also interfere with the private events that presumably subsidise the museum, like filming Succession. A daring and admirable move would be to convert the 1100m² temporary gallery into a free or permanent gallery, instantly tripling the amount of space open to the public, but it’d be expensive and I can’t imagine the V&A would be happy about the loss of a venue for its London exhibitions.
I appreciate Bell’s sentiment, but her optimism is mistaken and her reluctance to look back risks the same mistakes being repeated elsewhere. At some point, you do have to look back. Now that we can say the museum was badly designed, poor value for money, and a disappointment to visitors and tourists compared to other Dundee attractions, we can ask: why did this happen?
The current staff aren’t to blame, and I’m sure they’ll do the best with what they were given. The fault lies with its original designers. All of the problems of the V&A Dundee’s design were foreseeable, which means they either didn’t consult outside experts, or they didn’t listen to them. If Scottish journalists ever rouse themselves to investigate, I hope those decision-makers are held accountable.
What they did was civic malpractice and one day it will become a textbook example of how not to build a museum.
I live in Edinburgh, and I’m CEO of Six to Start. I’ve consulted for The British Museum and the V&A Museum on digital culture and games.
I was lead designer of We Tell Stories, an online storytelling project included in the MOMA’s Talk to Me exhibition in 2011, along with Zombies, Run!, nominated for the Design Museum’s “Design of the Year” Award in 2013. My book, A History of the Future in 100 Objects, was the subject of an exhibition at The Shanghai Project, curated by Hans Ulrich Obrist in 2016-17.
Interested in my other writing about museums? Check out VR Will Break Museums (2016).
